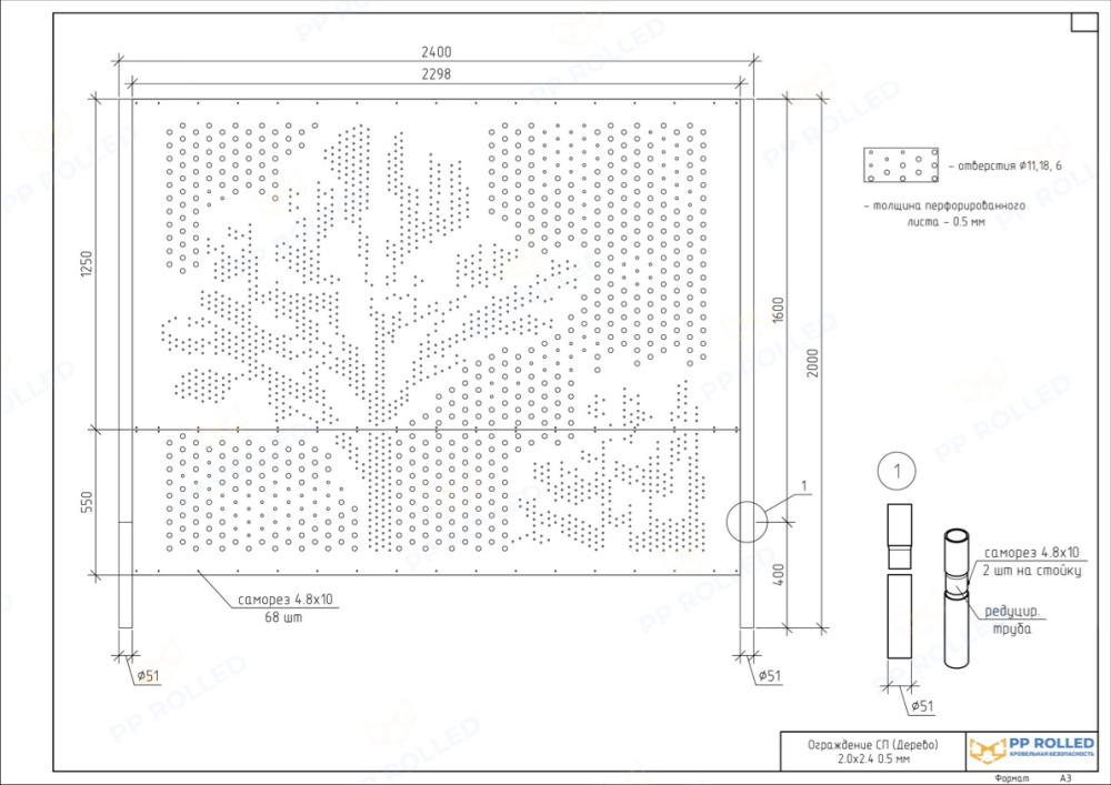
Типовые ограждения для применения на строительных площадках г. Москвы
из перфорированного листа.
Основа этих ограждений — рамная конструкция с опорой в виде бетонного блока. Щит изготовлен из перфорированного металлического листа с окраской или без. Работаем по всей палитре RAL.
Главные премущества: прочность и долгий срок эксплуатации , легкая установка и монтаж, благодаря небольшому весу и конструкции каркаса.
Такой продут был произведён и разработан в связи с ПОРУЧЕНИЕМ ПРАВИТЕЛЬСТВА МОСКВЫ № 18-25-10593/23 ОТ 19.12.2023 О ПРИМЕНЕНИИ С 01.01.2024 ПЕРФОРИРОВАННЫХ ОГРАЖДЕНИЙ НА СТРОИТЕЛЬНЫХ ПЛОЩАДКАХ Г. МОСКВЫ.
- 0
- Главная
- КаталогНазад
- Каталог
- Ограждения кровли Назад
- Ограждения кровли
- Ограждение DECO с фальцевым креплением
- Ограждения для фальцевой кровли ROLLED
- Ограждение для фальцевой кровли ROLLED+
- Ограждение DECO
- Ограждения для скатной кровли ROLLED
- Ограждение для скатной кровли ROLLED+
- Ограждение парапета DECO
- Ограждения парапета кровли ROLLED
- Ограждение парапета кровли ROLLED+
- Системы перемещения и обслуживания
- Кровельные мостики
- Снегозадержатели
- Пожарные лестницы П1-1 и П1-2 (ГОСТ Р 53254-2009)
- Ограждения для строительных площадок из перфорированного листа
- Перфорированные листы
- Доборные элементы Назад
- Доборные элементы
- Джи-профиль
- Ендова верхняя
- Капельник для кровли
- Конек для сэндвич-панелей
- Конек кровли фигурный
- Конек крыши
- Н профиль соединительный
- Нащельник для сэндвич-панелей
- Откос оконный
- Отлив для окон
- Отлив для цоколя фундамента
- Планка ветровая
- Планка Ендовы
- Планка завершающая
- Планка начальная
- Планка оконная
- Планка примыкания верхняя
- Планка примыкания нижняя
- Планка стыковочная
- Снегозадержатель для кровли
- Лестницы
- Корзины для кондиционера
- Кабельнесущие системы
- Крюки безопасности
- Водосточные системы
- Кровельный костыль
- Стойка ограждения перекрытия ЗСО
- Отдельные части продукции
- Услуги
- О компании
- Информация
- Прайс-лист
- Отзывы
- Изготовление
- Стать дилером
- Контакты
- Ограждения кровли Ограждения кровли
- Фальцевая кровля
- Металлочерепица, профнастил, сендвич-панель
- Парапетная кровля
- Системы перемещения и обслуживания Системы перемещения и обслуживания
- Кровельные мостики
- Снегозадержатели
- Пожарные лестницы П1-1 и П1-2 (ГОСТ Р 53254-2009) Пожарные лестницы П1-1 и П1-2 (ГОСТ Р 53254-2009)
- Ограждения для строительных площадок из перфорированного листа Ограждения для строительных площадок из перфорированного листа
- Перфорированные листы Перфорированные листы
- Доборные элементы Доборные элементы
- Лестницы
- Корзины для кондиционера
- Кабельнесущие системы
- Крюки безопасности Крюки безопасности
- Водосточные системы
- Кровельный костыль Кровельный костыль
- Стойка ограждения перекрытия ЗСО Стойка ограждения перекрытия ЗСО
- Отдельные части продукции

























































































